4527 Tenpence CirPace, FL 32571




Mortgage Calculator
Monthly Payment (Est.)
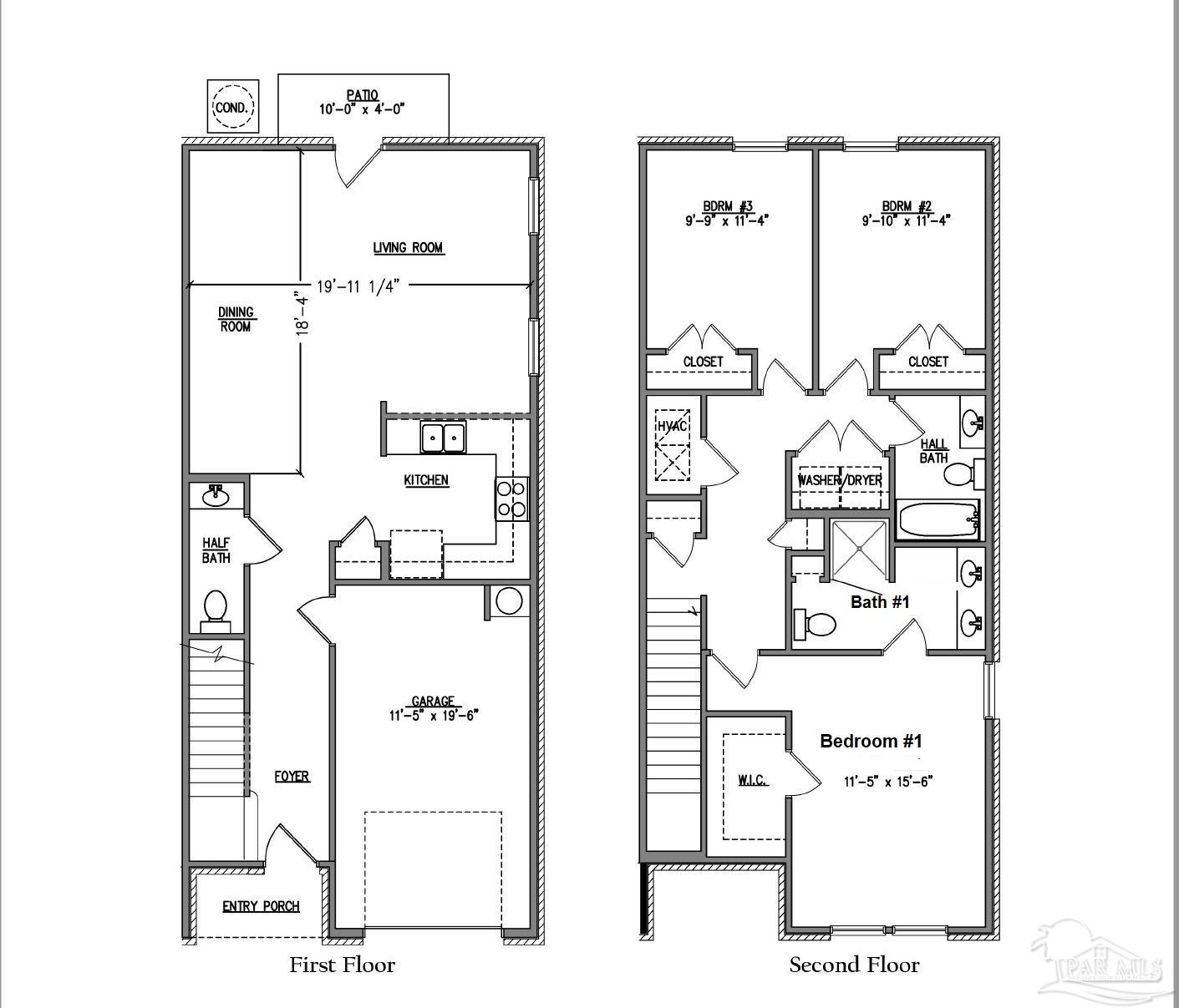
$1,117Explore the Palm, the featured floorplan of Parker Grove! The Palm features 3 bedrooms, 2.5 bathrooms, and a 1 car garage across 1,500 square feet. When entering the Palm from the covered porch, you are greeted by an inviting foyer on the first floor that leads to garage access on the right, and a half-bath on the left. Just past the half bath, you will find the beautiful kitchen seamlessly integrated with the main living and dining area. The kitchen features stainless steel appliances, stunning quartz countertops, breakfast bar, and pantry. The living space is made bright and airy with multiple windows and access to the covered patio. To the left of the foyer entrance, is stair access to the second floor. On the second floor, you will find a hallway that includes storage, the laundry space, bedroom 2 and 3, and a full bath. On the opposite side of the second floor, is a small hall leading to the primary bedroom. The primary bedroom features bright and airy windows, a large walk-in closet, and ensuite bath. The ensuite bath includes a relaxing walk-in shower, double vanity sink, and additional storage. This primary suite makes the perfect retreat. Each townhome is built with our Smart Home Connected package. Schedule your tour of the Palm today!
| 5 days ago | Listing updated with changes from the MLS® | |
| 5 days ago | Price changed to $244,900 | |
| 2 months ago | Listing first seen on site |
Copyright 2026 by the Multiple Listing Service of the Pensacola Association of REALTORS® This information is believed to be accurate but is not guaranteed. Subject to verification by all parties. This data is copyrighted and may not be transmitted, retransmitted, copied, framed, repurposed, or altered in any way for any other site, individual and/or purpose without the express written permission of the Multiple Listing Service of the Pensacola Association of REALTORS®. Florida recognizes single and transaction agency relationships. Information Deemed Reliable But Not Guaranteed. Any use of search facilities of data on this site, other than by a consumer looking to purchase real estate, is prohibited.
Last checked: 2026-04-22 09:13 AM UTC

